How Much Does It Cost To Build A Custom Home in Lethbridge?

How Much Does It Cost To Build A Custom Home?
If you're dreaming about building your perfect home in or around Lethbridge, one of the first questions you're probably asking is: "How much is this going to cost?"
Fair question, but not such a simple answer. At K2 Prairie
Builders, we believe in being transparent. The truth is, every custom home is different, and the cost depends on a mix of factors like design, size, location, materials, and even the weather.
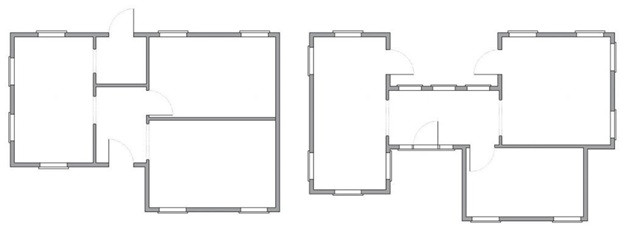
For example, below are two sample floor plans both 525 square feet. With additional windows, doors, more exterior surface area, and a more complex foundation, the cost to build the house on the right will be more than the house on the left. If you phoned us and asked how much is your price per square foot and we told you $300 a square foot to build before any design or consultation is complete we would either be ripping you off on the simple design or losing our shirt on the more complex design.

Don’t worry we are going to break it down in plain English.
Keep reading to take a look at our basic outline to successfully price your custom home
Understanding the Key Factors Affecting Custom Home Costs in Southern Alberta
Before you get a final price tag, here are the biggest things that influence what you’ll pay:
• Size of the home - More square footage means more materials and more labour.
• Design Complexity - Simple shapes are cheaper. Vaulted ceilings, extra corners, or custom features add cost.
• Finishes & Fixtures - Choosing luxury items like granite countertops or hardwood floors will bump your budget.
• Labour and Trades - Skilled trades cost more (and are worth every penny), even more so in high-demand seasons.
• Site Conditions - Is the land flat or sloped? Easy to access or remote? These all impact pricing.
• Utilities & Infrastructure - Need a septic system, well, or power hookups? That adds cost too.
Understanding Location Costs - Building in Lethbridge vs. Calgary or Edmonton
Average Cost to Build a Custom Home in Calgary
Calgary is a beautiful city, but building there isn't cheap. Expect to pay
anywhere up to $400 per square foot, depending on how custom your build is. In high-end areas or with luxury features, it can go up to $1,000+ per square foot.
What to Expect When Building a Custom Home in Edmonton
Surprising as it may seem Edmonton tends to be a bit more affordable. Costs range but tend to stick around the $300 per square foot, with more flexibility in land pricing and slightly lower trade rates.
Cost Considerations for Building in Rural Alberta
If you’re heading out into rural Alberta (like many of our K2 clients), you’ll often get more land for your money, but might need to budget for extra infrastructure like septic systems, wells, and access roads. That said, you’ll also have more freedom in design, fewer zoning headaches, and a unique setting.
How to Budget for Your Custom Home Build in Alberta
Choosing the Right Builder for Your Custom Home
The best way to stay on track financially? Work with a builder who you respect and one that takes budgeting seriously.
At K2 Prairie Builders, we walk you through every step of the pricing process.
Budget and Vision (Discovery Meeting)
We kick things off with a conversation about:
• Your budget (and if there's room for contingency)
• Your land and services
• The size and style of home you're after
• Your Must-Have finishes and choices
From there, we can give you a realistic ballpark estimate based on our past builds.
Concept Design Pricing (Design Consultation)
Once we have some layout ideas and style preferences, we'll dive into:
• Square Footage
• Design Complexity
• Features and accessories
You will get a more detailed estimate, so you can make informed decisions moving forward.
Preliminary Design and Specifications (Design Proposal)
Now we get serious. By this stage, we're finalizing:
• Floor Plans
• Mechanical Systems
• Cabinetry and Millwork (Shop Drawings)
• Windows, doors, fixtures, and more
This leads to your fixed price quote, so you know exactly what you're getting and what it will cost.
Is Building a Custom Home in Lethbridge Worth It?
Absolutely - and here's why:
Lethbridge offers great value, especially compared to other major cities in Alberta. You get the perks of a growing community, access to great trades, and beautiful surrounding areas. Plus, it’s a perfect location for semi-rural builds, retirement properties, and custom homes that stand out
Why Building a New Home in Lethbridge Provides More Value Than Buying a Resale Property
Sure, resale homes can seem like the faster option—but they come with
compromises.
When you build new, you get exactly what you want, backed by modern
construction standards and warranties.
Modern Floor Plans and Design
Forget boxed-in layouts and outdated finishes. With a custom build, you can:
• Embrace open-concept living
• Include home offices or gym spaces
• Maximize natural light and the flow of you home
Energy Efficiency and Modern Amenities
Building new gives you access to:
• High efficiency heating and cooling
• Better insulation and windows
• Smart Home Features
• Lower Utility bills
These aren't just nice-to-haves, they are long term savings and comfort.
Warranty and Peace of Mind
We stand behind every build with a solid warranty. That means less stress, more support, and the confidence that your investment is protected.
With K2 Prairie Builders, you're backed by our years of industry experience and our commitment to craftmanship.
Ready to Build Your New Home in Lethbridge?
Let's make it happen!
Whether you're just starting to dream or ready to dive into design, we're here to help guide you through the custom home building process - from the first call to final walkthrough.
FAQ's About How Much It Costs To Build A Custom Home
How much does it cost per square foot to build a home in Lethbridge?
A: On average, custom home builds in Lethbridge range between $250-$400 per square foot, depending on design, finishes, and site work.
Is it cheaper to buy or build a home in Alberta?
A: Building can cost more upfront, but you get better energy efficiency, modern layouts, and fewer repairs, making it a better long term value.
How Long does it take to build a custom home?
A: Typically, 10-14 months, depending on weather, complexity, and planning time some jobs can extend up to 24 months.
What's included in a custom home quote?
A: Even if you choose not to use K2 Prairie Builders as your choice contractor your quote should include:
• Parties involved
• Agreed upon Price - including GST
• Expected Completion Date
• Terms of Payment
• Drawings
- Site Plan
- IFC Blueprints (Issued for Construction)
- Structural
- Trusses
- Floor Trusses
- Window Details
- Cabinetry & Built-ins
- Finishing
• Insurance and Warranty information
• Policy on changes/ alterations during the build process
• Specification Sheet
Not all these items will be 100% confirmed, but you should be able to see an example of what your builder is including, and it should be noted in your building agreement.
- Site Servicing (water, gas, electrical)
- Foundation & Concrete Specifications
- Framing Specifications
- Exterior Finishes
- Windows - you should see exactly what you are getting
- HVAC (Heating, Ventilation & Air Conditioning)
- Plumbing Fixture (tubs, showers, sinks, taps)
- Insulation - What types of insulation will be used
- Finishing (Cabinetry, Countertops, Closets, Built-ins, Flooring, Tile, Stone, Fireplaces, etc.)
Ensure you know what you are getting. When you sign a building agreement, this will set the standard for a successful build. A proper contract will leave you with a feeling of security.
Do you help with land, financing, or design?
A: Yes! We assist with land consultations, budget planning, and custom design so you feel supported from start to finish.
Got questions or ready to book a discovery call?
Reach out today- we would love to hear about your project.
Let's build something incredible together.
